嘉興聞泰電子廠10000級無塵車間裝修
作者:上海瀾盛凈化工程有限公司 發布時間:2019-11-16 09:25:19 點擊:154
此次的裝修項目是嘉興聞泰電子廠無塵車間裝修,潔凈車間的級別是萬10000級,工程面積約700平方米,整個的裝修工程流程簡單、并且都是按照規定的標準規范進行施工。
工程概況
項目名稱:嘉興聞泰電子廠無塵車間裝修
項目地址:浙江省嘉興市南湖區亞中路777號
所屬行業:精密電子
裝修面積:700㎡
潔凈度級別:萬級潔凈車間
凈化原理
氣流→初效凈化→加濕段→加熱段→表冷段→中效凈化→風機送風→管道→高效凈化風口→吹入房間→帶走塵埃細菌等顆粒→回風百葉窗→初效凈化重復以上過程,即可達到凈化車間目的
結構材料
1.凈化廠房墻、頂板材一般多采用50mm厚的夾芯彩鋼板,其特點為美觀、剛性強。角與角之前的拼接選用圓弧連接,宜清潔,符合GMP要求
2.地坪:可采用2mm/3mm環氧樹脂或是PVC地坪,電子廠房選用防靜電地坪
3.送回風管道用熱渡鋅板制成,貼凈化保溫效果好的阻燃型PF發泡塑膠板。
4.高效送風口用不銹鋼框架,美觀清潔,沖孔網板用烤漆鋁板,不生銹不粘塵,宜清潔。
電子場無塵凈化要求
電子制造廠萬級潔凈室內的噪聲級(空態):不應大于65dB(A)
●電子制造廠潔凈室垂直流潔凈室滿布比不應小于60%,水平單向流潔凈室不應小于40%,否則就是局部單向流了。
●電子制造廠潔凈室與室外的靜壓差不應小于10Pa,不同空氣潔凈度的潔凈區與非潔凈區之間的靜壓差不應小于5Pa
●電子制造行業萬級潔凈室內的新鮮空氣量應取下列二項中的最大值:
●補償室內排風量和保持室內正壓值所需的新鮮空氣量之和。
●保證供給潔凈室內每人每小時的新鮮空氣量不小于40m3。
電子制造行業潔凈室凈化空調系統加熱器,應設置新風,超溫斷電保護,若采用點加濕時應設置無水保護,寒冷地區,新風系統應設置防凍保護措施。無塵室的送風量,應取下面三項最大值:
●保證電子制造廠無塵室空氣潔凈度等級的送風量:
●根據熱,濕負荷計算確定電子廠潔凈室的送風量:
●向電子制造廠潔凈室內供給的新鮮空氣量:
凈化參數
換氣次數:100000級≥15次;10000級≥20次;1000≥30次。
壓差:主車間對相鄰房間≥5Pa平均風速:10級、100級0.3-0.5m/s;
溫度冬季>16℃;夏季<26℃;波動±2℃。
濕度45-65%;GMP粉劑車間濕度在50%左右為宜;電子車間濕度略高以免產生靜電。噪聲≤65dB(A);新風補充量是總送風量的10%-30%;照度300LX

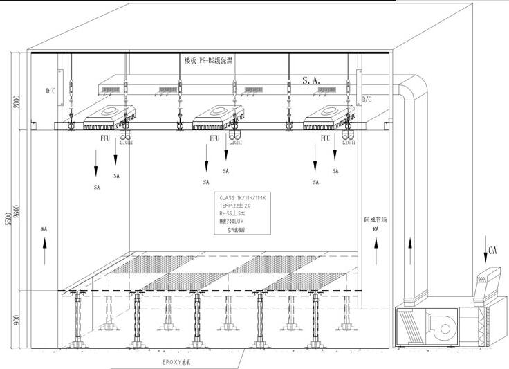
凈化工程方案構架圖
工程效果圖








